Waterway Infrastructure
Our team add value to the way our services are delivered because they understand local and regional issues.
NSW Maritime - Wharves at Sydney Harbour and Milson's Point
Perfect Engineering was contacted by NSW Maritime to design and construct wharves in Sydney. Perfect Engineering was responsible for the design and construction of wharves at Milson's Point and other marquee locations in Sydney. We provided steel formwork for individually precast sections that were then transported and installed on site. Have a look at the photos below which show the processes involved in completing this project.
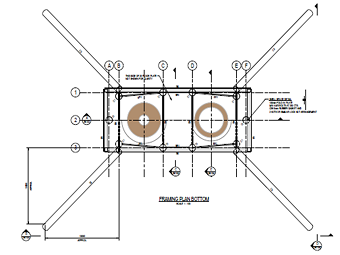
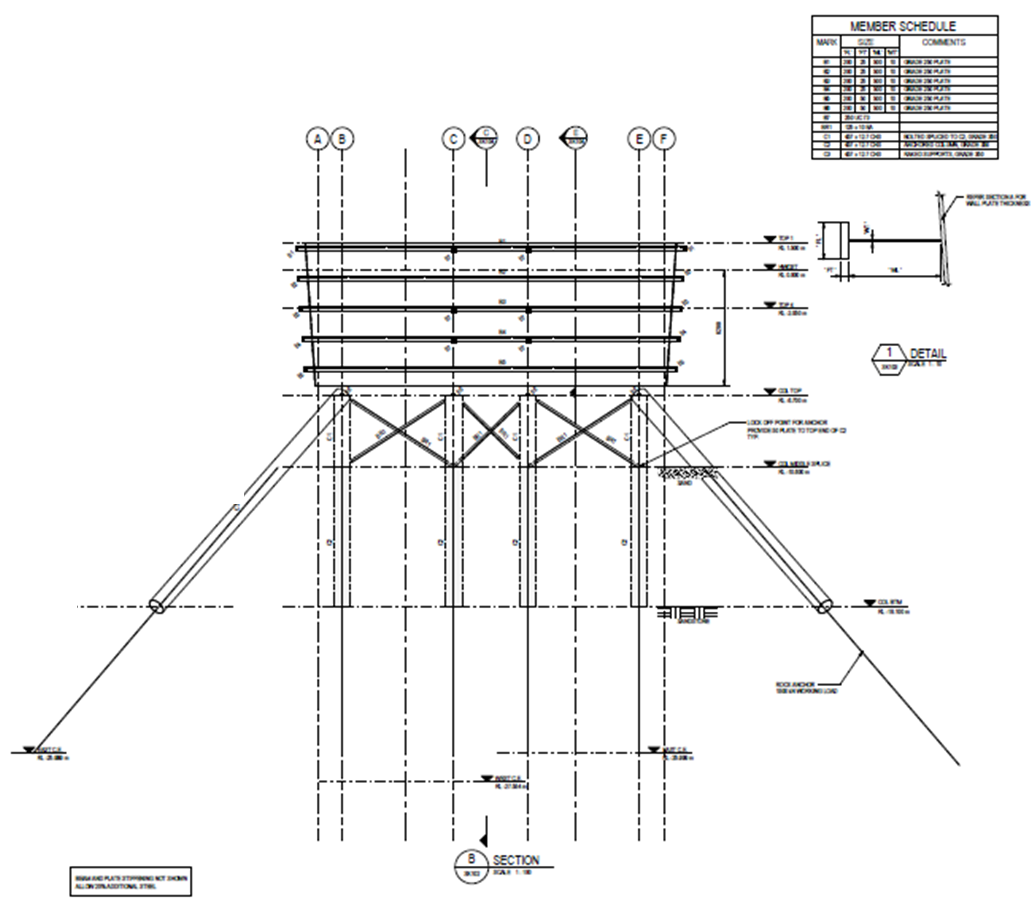
Sydney Trains - Hawkesbury River Bridge
Perfect Engineering completed a design for a cofferdam as part of the Hawkesbury River Bridge Pier 2 project for Sydney Trains. This cofferdam would provide access to the concrete piers of the bridge, allowing workers to complete the necessary repair works to the damaged concrete piers.
Completed Projects

Our Projects
All of our projects have been very successful and completed well within project deadlines. We’ve been able to optimise construction time, minimise environmental impact and take care of our staff and the community by strictly adhering to WH&S and environmental management practices in all projects.
Engineers make it happen!
"Perfect Engineering is proud to announce that it is committed to a long term partnership with Engineers Australia and will continue to keep up to date and abreast all of the requirements with Engineers Australia."
— The Management Team, Perfect Engineering
Want to find out more?
We're always happy to provide more information on our services.
Please Get in Touch